For Sale

$479,900

18 Martin Lake Drive , Lake Echo, NS B3E 1B1

2 Storey 4 Beds 2 Baths

Remarks

Are you looking for a move-in ready affordable home close to the city? 18 Martin Lake Drive is it! This beautiful 4 bedroom, 2 full bathroom home sits on a large country lot and is ready for new owners. Just 12 minutes from Dartmouth and 20 minutes from Halifax, you can be anywhere quickly from your spacious home and lot. The lot has a great mix of plenty of flat yard as well as some natural treed space. So, tons of space for country living while being close to the city and all amenities. Entry is by way of a beautiful set of stairs and deck leading into the main level which is bathed in natural light and features attractive hardwood flooring throughout. The open concept kitchen and dining area flow nicely to a large, bright living room. There is also a bedroom, full bathroom and a convenient spacious laundry room on this level. Decks on the front and off the back offer great opportunity for outdoor living space on the main floor. Upstairs, there are two more bedrooms and another full bathroom. The large primary suite has an ample sized walk-in closet. The lower level adds even more finished living space with a walk-out at grade. Families will enjoy this level as it features a large rec room, 2nd kitchen, a 4th bedroom, a workshop and plenty of storage. Or, the walk-out and kitchen are a great start to a secondary or in-law suite. How would you use this space? This home is away from the main road, but close enough to enjoy close proximity to local amenities like: the Orenda Canoe Club, the community centre, sports courts and fields, daycares, Shopping, Lake Echo Beach and Porters Lake Provincial Park. Be sure to view the 3D virtual tour and book a private viewing today!

Property Summary

  • Building Style: 2 Storey
  • Floor Space (approx): 2320 Square Feet
  • Built in: 1982
  • Bedrooms: 4
  • Bathrooms (Total): 2

Property Features:

  • Appliances Included:
    Oven , Dishwasher , Dryer , Washer , Refrigerator , Other
  • Basement:
    Fully Developed , Partially Developed , Walkout
  • Building Style:
    2 Storey
  • Community Features:
    Park , Playground , Recreation Center , School Bus Service , Shopping , Marina , [] , []
  • Driveway/Parking:
    Paved
  • Exterior Finish:
    Wood Siding
  • Flooring:
    Carpet , Hardwood , Laminate , Tile
  • Foundation:
    Block
  • Fuel Type:
    Electric , Oil
  • Garage:
    None
  • Heating/Cooling Type:
    Baseboard , Forced Air , Furnace
  • Land Features:
    Partial Landscaped
  • Property Size:
    Under 0.5 Acres
  • Rental Equipment:
    None
  • Roof:
    Asphalt Shingle
  • Sewage Disposal:
    Septic
  • Structures:
    Shed
  • Title to Land:
    Freehold
  • Utilities:
    Cable , Electricity , High Speed Internet , Natural Gas , Telephone , Other
  • Water Source:
    Drilled Well

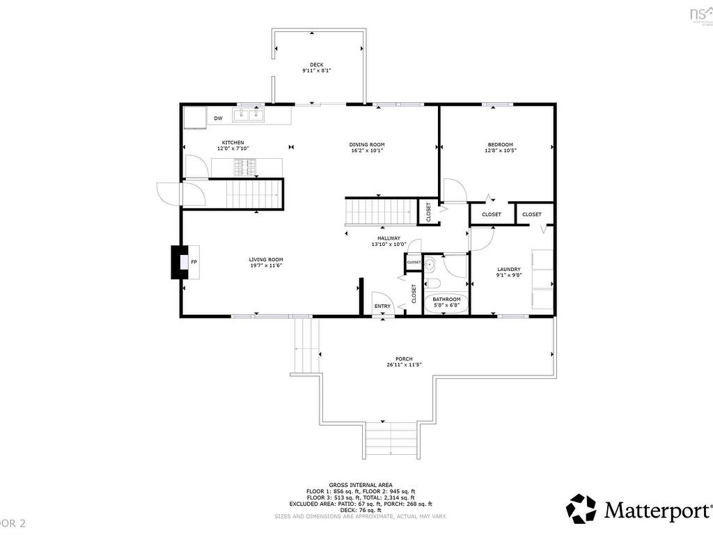
Rooms

  • Living:
    Level: Main Level 19.7x11.6
  • Dining:
    Level: Main Level 16.1x10
  • Kitchen:
    Level: Main Level 12x7.9
  • Master Bedroom:
    Level: 2nd 16.5x10
  • Bedroom:
    Level: 2nd 12.1x9.6
  • Bathroom:
    Level: 2nd 9.6x9.6
  • Bedroom:
    Level: Main Level 12.7x10.5
  • Foyer:
    Level: Main Level 9.1x4.5
  • Bathroom:
    Level: Main Level 6.6x4.11
  • Laundry:
    Level: Main Level 9.9x9.1
  • Bedroom:
    Level: Lower Level 10.8x10.3
  • Recreation Room:
    Level: Lower Level 18.6x14.4
  • Workshop:
    Level: Lower Level 11.3x10.7
  • Utility:
    Level: Lower Level 14.5x8
  • Storage:
    Level: Lower Level 15.3x7.4
  • Storage:
    Level: Lower Level 6.5x3.9
  • Level: Lower Level

Listing courtesy of: 

Royal LePage Anchor Realty

Lifestyle
Neighbourhood Info
Agent

Mike McKenna

Get More Info